• 疊加式減壓閥 ZDR10

疊加式減壓閥 ZDR10



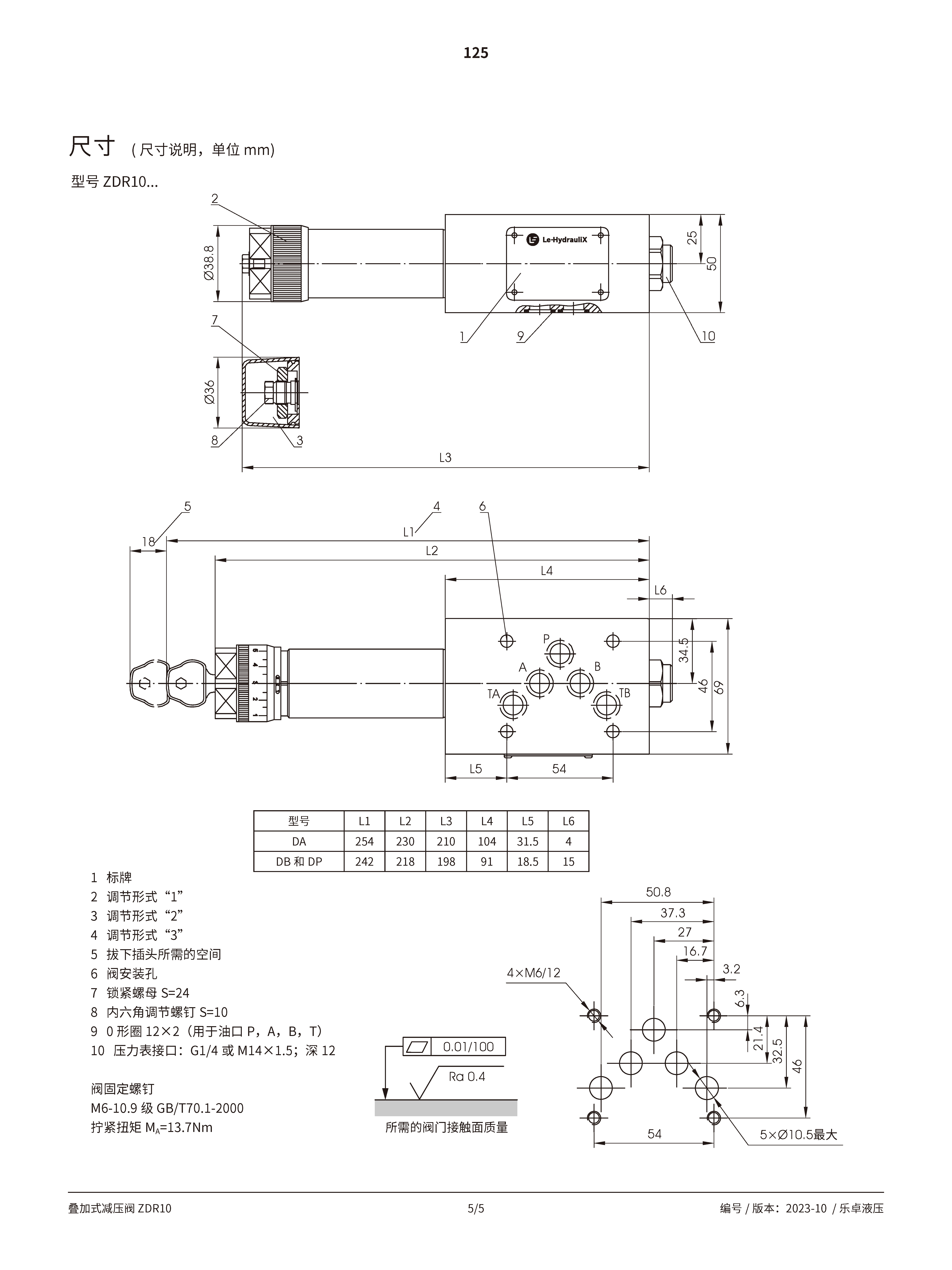
. 標稱尺寸 10

. 最大工作壓力 315 bar

. 最大流量(建議) 80 l/min


7.jpg8.jpg9.jpg10.jpg


. 油口位置依 DIN 24340 A型,不含定位孔(標準型)

. 油口位置依 ISO 4401,附定位孔

. 疊加式結構

. 4 種壓力範圍

. 3 種調控元件:旋鈕、帶護置的六角套筒螺絲、帶鎖有刻度旋鈕

. 油口 A、B 或 P 減壓

. 單向閥,可選擇